Residencia Max Define_Sao Paulo_Brasil #Arquitectura
La Residencia Max Define se encuentra ubicada en Sao Paulo, Brasil. Fue construida en el año 1978 por el arquitecto Eduardo de Almeida.
El final de los años 70 es un período que la crítica
arquitectónica brasileña normalmente toma como de producción decadente, afirmación en parte cuestionada por Luis Espallargas Giménez, que toma la
Residencia Max Define como obra notable, pero que pasó desapercibida en el
contexto de la época, cuando prevalecía el brutalismo paulista, por su extremo
refinamiento, obtenido gracias a la "su insuperable y sofisticada
ejecución".
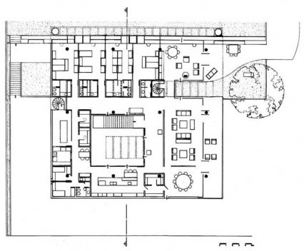
La implantación de la casa se da a partir de la formulación
de una pauta geométrica, que busca controlar el terreno trapezoidal irregular
con su descomposición inicial en un triángulo y un rectángulo, y la posterior
partición del rectángulo en dos cuadrados. La casa se inscribe en el cuadrado
de la izquierda, incorporando la forma pura en su plan. Las áreas libres
resultantes quedaron bajo la responsabilidad del paisajista Fernando Chacel,
que propone un jardín que se extiende por todo el terreno, con una piscina
semicircular dentro del triángulo. Un muro de arrimo contiene el terreno en
pendiente ascendente, conformando dos niveles terraplenados ahora articulados
por escaleras laterales. La casa - un cajón de hormigón y vidrio sostenido por doce
pilares dispuestos en cuadrícula cartesiana - tiene cerca de 1/3 de su área
apoyada sobre el nivel superior, permaneciendo los 2/3 restantes suspendidos,
abriendo espacio para el estacionamiento de automóviles y área de servicio.
La planta cuadrada y la cuadrícula rectangular de la
estructura resultan en una compleja regulación de medidas, resultando en áreas
a la vez modulares y diferenciadas, con la presencia siempre sorprendente de
los pilares en cada recinto de la casa, ya sea frente al vidrio, ya sea en el
centro de la habitación que se encuentra en el centro de las áreas sociales y
de servicio, que a su vez están reguladas por el medio ambiente, un recorte
cuadrado en la losa de piso, que permite el contacto ambiental con el nivel inferior
y una circulación periférica a los vidrios que abren la casa para su propio
interior.
Fotografías: Nelson Kon.
Texto y planos: Arquitextos; Abilio Guerra y Alessandro José Castroviejo Ribeiro.











